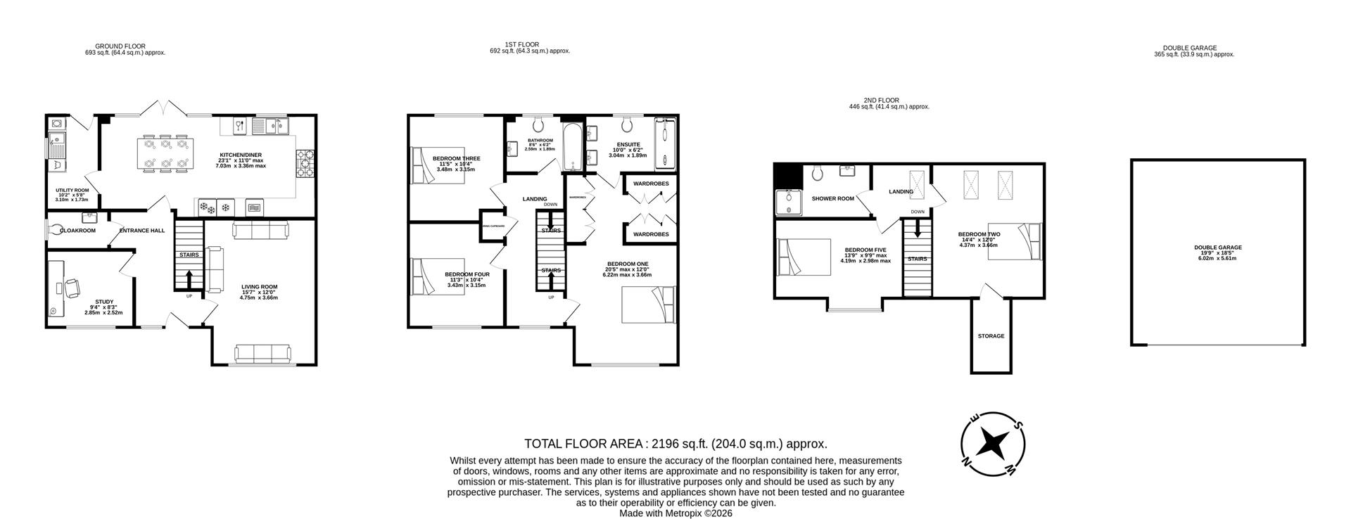
Description
Primary Homes & Lettings are pleased to present this substantial and beautifully maintained Redrow built five DOUBLE bedroom detached house, this impressive home offers spacious and versatile accommodation arranged over three floors. Located in the highly desirable Abbey Farm development perfectly positioned for convenient access to local amenities, reputable schools, and excellent transport links such as the A419. The ground floor accommodation comprises of entrance hallway, living room, study, cloakroom, kitchen/diner and utility room. To the first floor is the master bedroom (with en-suite shower) two further bedrooms and family bathroom. Bedrooms two and five and shower room are situated on the second floor. Property also benefits from a sunny aspect rear garden, double garage, driveway parking for several vehicles and gas central heating. An early viewing is highly recommended.
Entrance Hallway
Stairs to first floor. Understairs cupboard. Radiator.
Cloakroom
Obscured uPVC window to side elevation. White suite comprising of wash hand basin and low level W.C. Tiled flooring. Inset ceiling lights. Radiator.
Study
uPVC window to front elevation. Radiator.
Living Room
uPVC window to front elevation. Radiator.
Kitchen/Diner
uPVC windows and French doors to rear garden. Wall and base units with worktops over. Stainless steel double sink and drainer. Built in double oven. Five burner gas hob with triple extractor hood over. Integral double fridge/freezer and dishwasher. Tiled flooring. Inset ceiling lights. Radiator.
Utility Room
uPVC window to side elevation. Door to rear garden. Wall and base units with worktops over. Stainless steel sink and drainer. Space and plumbing for washing machine and tumble dryer. Extractor fan. Tiled flooring. Inset ceiling lights. Radiator.
Landing
uPVC window to front elevation. Stairs to second floor. Airing cupboard. Radiator.
Bedroom One
uPVC window to front elevation. Range of built in wardrobes. Inset ceiling lights. Two radiators.
En-Suite
Obscured uPVC window to rear elevation. White suite comprising of walk in shower, two wash hand basins and low level W.C. Extractor fan. Shaving point. Part tiled walls. Tiled flooring. Inset ceiling lights. Heated towel rail.
Bedroom Three
uPVC window to rear elevation. Radiator.
Bedroom Four
uPVC window to front elevation. Radiator.
Bathroom
Obscured uPVC window to rear elevation. White suite comprising of panelled bath with shower over, wash hand basin and low level W.C. Extractor fan. Shaving point. Part tiled walls. Tiled flooring. Inset ceiling lights. Heated towel rail.
Landing
Velux window to rear elevation. Radiator.
Bedroom Two
Two Velux windows to rear elevation. Storage cupboard. Loft access. Radiator.
Bedroom Five
uPVC window to front elevation. Radiator.
Shower Room
White suite comprising of built in shower, wash hand basin and low level W.C. Extractor fan. Shaving point. Part tiled walls. Tiled flooring. Inset ceiling lights. Heated towel rail.
Front
Driveway parking for several vehicles. Laid to lawn with mature hedging. Path leading to storm porch. Gated access to rear garden. Outside light.
Rear Garden
South East facing. Enclosed by timber fencing. Mostly laid to lawn with paved patio. Gated access to parking and front. Outside tap and light.
Double Garage
Up and over garage door. Eaves storage. Light and power.
Notes
Property is 8 years old with 2 years remaining on NHBC.
Tenure
We are advised that this property is freehold; however, prospective buyers should verify this information with their solicitor or legal representative.
Sizes
Please note, all measurements of room sizes given are not guaranteed and figures are for guidance only.
Viewings
Strictly via our Swindon office telephone (01793) 641641.
Mortgages
If you would like independent mortgage advice please call Dan Spurr at Primary on (01793) 616617. Home visits available.
Money Laundering
Intending purchasers will be asked to produce identification documentation at a later stage and we would ask for your co-operation in order that there will be no delay in agreeing the sale.
Viewing
Please contact us on 01793 641641 if you wish to arrange a viewing appointment for this property, or require further information.
Energy Performance Certificate
Click here to view the Energy Efficiency Rating and Environmental Impact Rating for this property.
Disclaimer
Primary Homes and Lettings endeavour to maintain accurate depictions of properties in Virtual Tours, Floor Plans and descriptions, however, these are intended only as a guide and purchasers must satisfy themselves by personal inspection.
Primary Homes & Lettings are pleased to present this substantial and beautifully maintained Redrow built five DOUBLE bedroom detached house, this impressive home offers spacious and versatile accommodation arranged over three floors. Located in the highly desirable Abbey Farm development perfectly positioned for convenient access to local amenities, reputable schools, and excellent transport links such as the A419. The ground floor accommodation comprises of entrance hallway, living room, study, cloakroom, kitchen/diner and utility room. To the first floor is the master bedroom (with en-suite shower) two further bedrooms and family bathroom. Bedrooms two and five and shower room are situated on the second floor. Property also benefits from a sunny aspect rear garden, double garage, driveway parking for several vehicles and gas central heating. An early viewing is highly recommended.
Entrance Hallway
Stairs to first floor. Understairs cupboard. Radiator.
Cloakroom
Obscured uPVC window to side elevation. White suite comprising of wash hand basin and low level W.C. Tiled flooring. Inset ceiling lights. Radiator.
Study
uPVC window to front elevation. Radiator.
Living Room
uPVC window to front elevation. Radiator.
Kitchen/Diner
uPVC windows and French doors to rear garden. Wall and base units with worktops over. Stainless steel double sink and drainer. Built in double oven. Five burner gas hob with triple extractor hood over. Integral double fridge/freezer and dishwasher. Tiled flooring. Inset ceiling lights. Radiator.
Utility Room
uPVC window to side elevation. Door to rear garden. Wall and base units with worktops over. Stainless steel sink and drainer. Space and plumbing for washing machine and tumble dryer. Extractor fan. Tiled flooring. Inset ceiling lights. Radiator.
Landing
uPVC window to front elevation. Stairs to second floor. Airing cupboard. Radiator.
Bedroom One
uPVC window to front elevation. Range of built in wardrobes. Inset ceiling lights. Two radiators.
En-Suite
Obscured uPVC window to rear elevation. White suite comprising of walk in shower, two wash hand basins and low level W.C. Extractor fan. Shaving point. Part tiled walls. Tiled flooring. Inset ceiling lights. Heated towel rail.
Bedroom Three
uPVC window to rear elevation. Radiator.
Bedroom Four
uPVC window to front elevation. Radiator.
Bathroom
Obscured uPVC window to rear elevation. White suite comprising of panelled bath with shower over, wash hand basin and low level W.C. Extractor fan. Shaving point. Part tiled walls. Tiled flooring. Inset ceiling lights. Heated towel rail.
Landing
Velux window to rear elevation. Radiator.
Bedroom Two
Two Velux windows to rear elevation. Storage cupboard. Loft access. Radiator.
Bedroom Five
uPVC window to front elevation. Radiator.
Shower Room
White suite comprising of built in shower, wash hand basin and low level W.C. Extractor fan. Shaving point. Part tiled walls. Tiled flooring. Inset ceiling lights. Heated towel rail.
Front
Driveway parking for several vehicles. Laid to lawn with mature hedging. Path leading to storm porch. Gated access to rear garden. Outside light.
Rear Garden
South East facing. Enclosed by timber fencing. Mostly laid to lawn with paved patio. Gated access to parking and front. Outside tap and light.
Double Garage
Up and over garage door. Eaves storage. Light and power.
Notes
Property is 8 years old with 2 years remaining on NHBC.
Tenure
We are advised that this property is freehold; however, prospective buyers should verify this information with their solicitor or legal representative.
Sizes
Please note, all measurements of room sizes given are not guaranteed and figures are for guidance only.
Viewings
Strictly via our Swindon office telephone (01793) 641641.
Mortgages
If you would like independent mortgage advice please call Dan Spurr at Primary on (01793) 616617. Home visits available.
Money Laundering
Intending purchasers will be asked to produce identification documentation at a later stage and we would ask for your co-operation in order that there will be no delay in agreeing the sale.
Viewing
Please contact us on 01793 641641 if you wish to arrange a viewing appointment for this property, or require further information.
Energy Performance Certificate
Click here to view the Energy Efficiency Rating and Environmental Impact Rating for this property.
Disclaimer
Primary Homes and Lettings endeavour to maintain accurate depictions of properties in Virtual Tours, Floor Plans and descriptions, however, these are intended only as a guide and purchasers must satisfy themselves by personal inspection.
Features
- Three Storey Detached House (Redrow Built)
- Five DOUBLE Bedrooms
- Spacious & Well Presented
- Sunny Aspect Rear Garden (South East Facing)
- Double Garage
- Driveway Parking For Several Vehicles
- 23ft Kitchen/Diner
- Downstairs Cloakroom & Utility Room
- Two Reception Rooms
- Sought After Location
Share
Request aValuation
Thinking of selling or letting your property? Find out how much it is worth with a free, no obligation valuation!

