Details
Gladstone Street, Swindon
£200,000
(Sold Subject To Contract)
Description
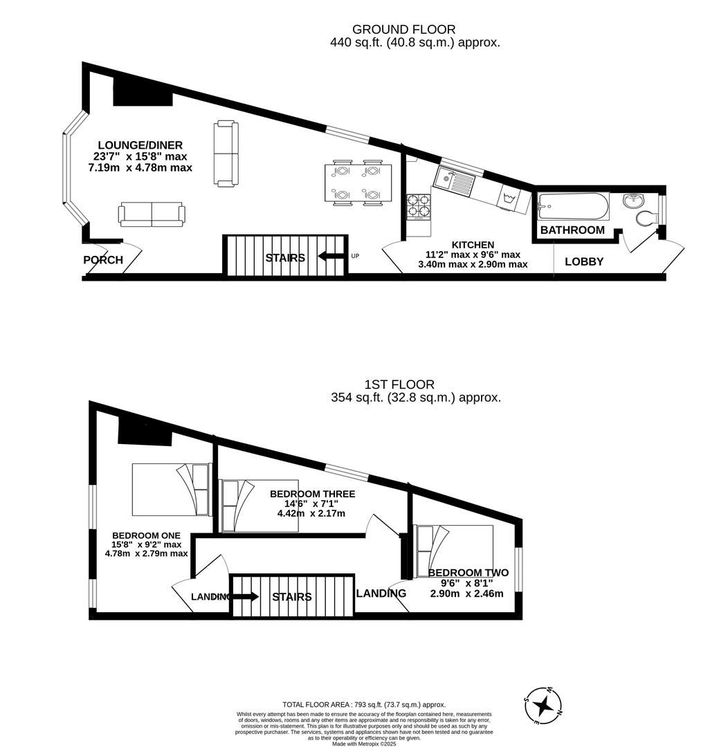
*** POTENTIAL LOFT CONVERSION *** We are delighted to offer this spacious three bedroom end terrace house being sold with NO ONWARD CHAIN. The accommodation briefly comprises of lounge/diner, kitchen, bathroom and three bedrooms. Property also benefits from an enclosed rear garden and gas central heating. Located in Gladstone Street within walking distance to the town centre and railway station.
Porch
Door to lounge/diner. Tiled flooring.
Lounge/Diner
uPVC bay window to front elevation. uPVC window to side elevation. Stairs to first floor. Two radiators.
Kitchen
uPVC window to side elevation. Wall and base units with rolled edge worktops over. Stainless steel sink and drainer. Built in single oven. Gas hob with extractor hood over. Space and plumbing for washing machine. Part tiled walls. Tiled flooring. Radiator.
Lobby
uPVC door to rear garden. Tiled flooring. Inset ceiling lights.
Bathroom
Obscured uPVC window to rear elevation. White suite comprising of panelled bath, pedestal wash hand basin and low level W.C. Part tiled walls. Tiled flooring. Inset ceiling lights. Heated towel rail.
Bedroom One
uPVC windows to front elevation. Radiator.
Bedroom Two
uPVC window to rear elevation. Radiator.
Bedroom Three
uPVC window to side elevation. Radiator.
Front
Enclosed by brick wall.
Rear Garden
Enclosed by brick wall and timber fencing. Gated access to side.
Sizes
Please note, all measurements of room sizes given are not guaranteed and figures are for guidance only.
Viewings
Strictly via our Swindon office telephone (01793) 641641.
Mortgages
If you would like independent mortgage advice please call Dan Spurr at Primary on (01793) 616617. Home visits available.
Money Laundering
Intending purchasers will be asked to produce identification documentation at a later stage and we would ask for your co-operation in order that there will be no delay in agreeing the sale.
Viewing
Please contact us on 01793 641641 if you wish to arrange a viewing appointment for this property, or require further information.
Energy Performance Certificate
Click here to view the Energy Efficiency Rating and Environmental Impact Rating for this property.
Disclaimer
Primary Homes and Lettings endeavour to maintain accurate depictions of properties in Virtual Tours, Floor Plans and descriptions, however, these are intended only as a guide and purchasers must satisfy themselves by personal inspection.
*** POTENTIAL LOFT CONVERSION *** We are delighted to offer this spacious three bedroom end terrace house being sold with NO ONWARD CHAIN. The accommodation briefly comprises of lounge/diner, kitchen, bathroom and three bedrooms. Property also benefits from an enclosed rear garden and gas central heating. Located in Gladstone Street within walking distance to the town centre and railway station.
Porch
Door to lounge/diner. Tiled flooring.
Lounge/Diner
uPVC bay window to front elevation. uPVC window to side elevation. Stairs to first floor. Two radiators.
Kitchen
uPVC window to side elevation. Wall and base units with rolled edge worktops over. Stainless steel sink and drainer. Built in single oven. Gas hob with extractor hood over. Space and plumbing for washing machine. Part tiled walls. Tiled flooring. Radiator.
Lobby
uPVC door to rear garden. Tiled flooring. Inset ceiling lights.
Bathroom
Obscured uPVC window to rear elevation. White suite comprising of panelled bath, pedestal wash hand basin and low level W.C. Part tiled walls. Tiled flooring. Inset ceiling lights. Heated towel rail.
Bedroom One
uPVC windows to front elevation. Radiator.
Bedroom Two
uPVC window to rear elevation. Radiator.
Bedroom Three
uPVC window to side elevation. Radiator.
Front
Enclosed by brick wall.
Rear Garden
Enclosed by brick wall and timber fencing. Gated access to side.
Sizes
Please note, all measurements of room sizes given are not guaranteed and figures are for guidance only.
Viewings
Strictly via our Swindon office telephone (01793) 641641.
Mortgages
If you would like independent mortgage advice please call Dan Spurr at Primary on (01793) 616617. Home visits available.
Money Laundering
Intending purchasers will be asked to produce identification documentation at a later stage and we would ask for your co-operation in order that there will be no delay in agreeing the sale.
Viewing
Please contact us on 01793 641641 if you wish to arrange a viewing appointment for this property, or require further information.
Energy Performance Certificate
Click here to view the Energy Efficiency Rating and Environmental Impact Rating for this property.
Disclaimer
Primary Homes and Lettings endeavour to maintain accurate depictions of properties in Virtual Tours, Floor Plans and descriptions, however, these are intended only as a guide and purchasers must satisfy themselves by personal inspection.
Features
- NO ONWARD CHAIN
- End Terrace House
- Three Bedrooms
- POTENTIAL LOFT CONVERSION
- 23ft Lounge/Diner
- Kitchen
- Downstairs Bathroom
- Enclosed Rear Garden
- Good Location
- EPC Rating - C
Share
Request aValuation
Thinking of selling or letting your property? Find out how much it is worth with a free, no obligation valuation!

